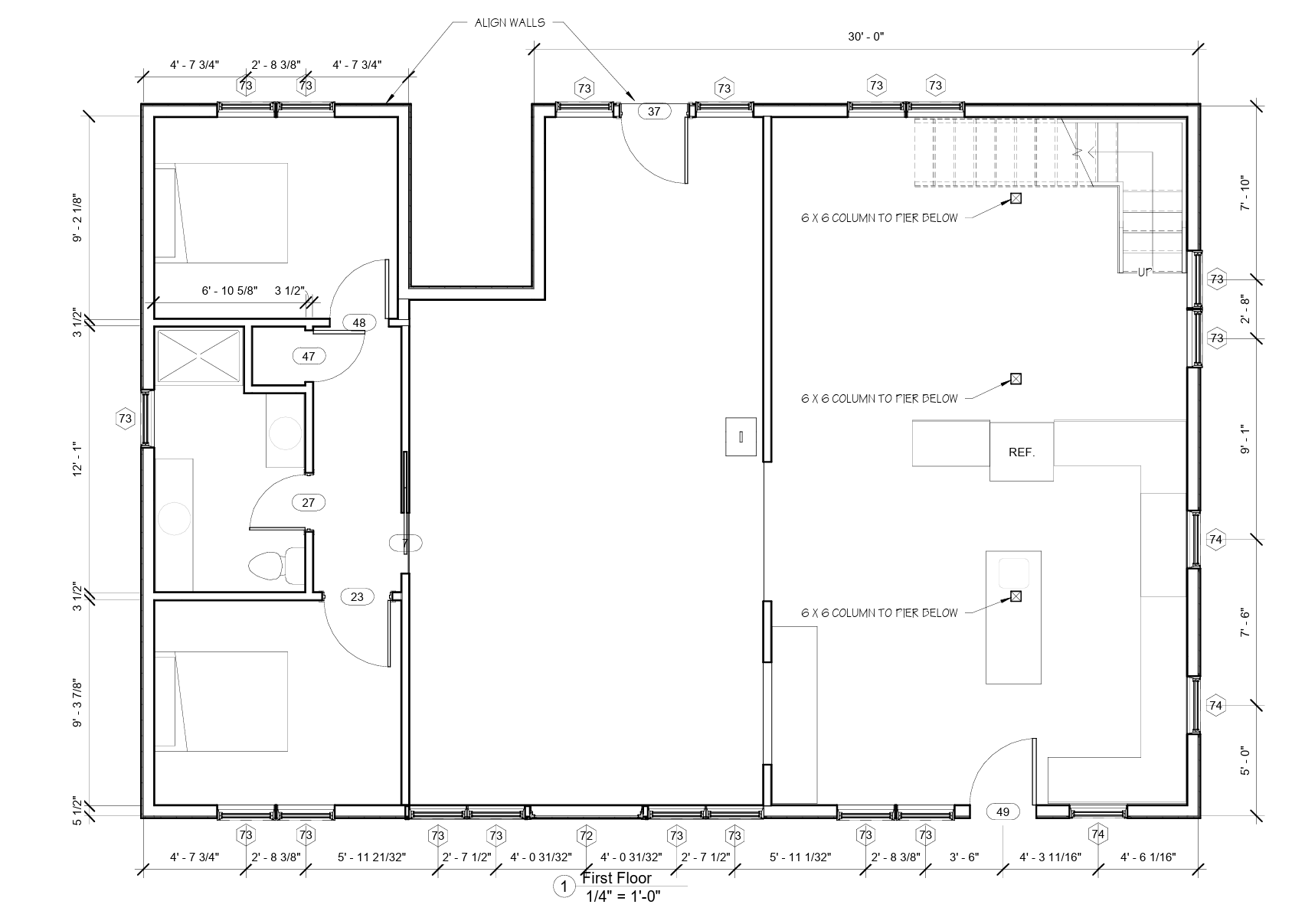
Maine expansion - Bridgton, Me

An inherited family home in Maine reimagined as a long-term retreat for a retired couple ready to invest in their next chapter. The original structure, small and dark, is being expanded outward and upward, with a new floor, revised rooflines, and thoughtful egress strategies designed to improve light, airflow, and seasonal heat control. In collaboration with The Architects Drew, the layout was redesigned to support daily life, creative work, and future expansion.

The new primary suite includes an integrated office and studio space, built-in storage, and a bath with closet and laundry thoughtfully contained upstairs. Throughout the home, room planning, kitchen design, furnishings, and material selections are guided by use patterns, antique collections, and extensive artwork — creating a space that supports both craft and comfort. - This project is ongoing

Previous
Previous

Quincy Condo

Next
Next

Buttermilk & Bourbon